Poliklinika Tyršovka Kolín
Moderní zařízení pro Vaši praxi v Kolíně
Vážená paní doktorko, vážený pane doktore,
společnost Sicco Central s.r.o. Vám nabízí jedinečnou příležitost k umístění Vaší ordinace či zdravotnického pracoviště v nově vznikajícím medicínském centru.
V Kolíně, na adrese Tyršova 1053, právě realizujeme rozsáhlou rekonstrukci budovy, která pod názvem Poliklinika Tyršovka nabídne špičkové zázemí pro lékaře i jejich pacienty.

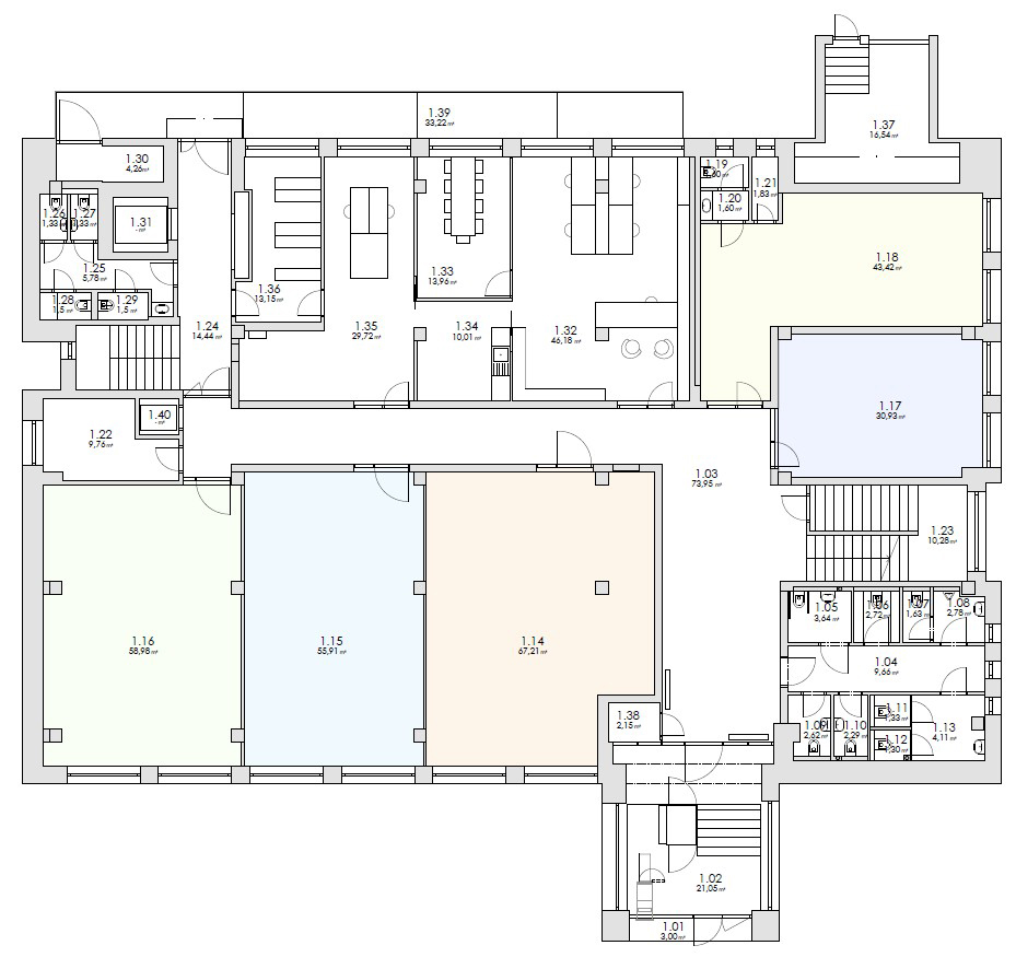
Aktuálně nabízíme k pronájmu prostory v 1. nadzemním podlaží o celkové ploše cca 230 m² (prostory 1.14, 1.15, 1.15, 1.17, 1.18 a 1.22).
Budova je ve fázi Shell & Core, což Vám jako prvním nájemníkům umožňuje přizpůsobit si velikost a dispozici jednotek přesně podle Vašich potřeb a norem pro zdravotnický provoz.
Renata Valášková
"Ráda Vám vysvětlím veškeré podrobnosti, zašlu podmínky nájmu, ukážu Vám prostory a zajistím k nahlédnutí dokumentaci."
Rádi Vám zašleme varianty půdorysů, aktuální fotografie z rekonstrukce nebo Vás objektem osobně provedeme.

Časový harmonogram a vize
Prostory v 1. NP
Jsou připraveny k dokončení dle Vašich individuálních požadavků.
Prostory:
- 1.14 ... 67,21 m2 lze spojit s prostory 1.15 a 1.16
- 1.15 ... 55,91 m2 lze spojit s prostory 1.14 a 1.16
- 1.16 ... 58,98 m2 lze spojit s prostory 1.14 a 1.15
- 1.17 ... 30,93 m2 lze spojit s prostory 1.18
- 1.18 ... 48.45 m2 lze spojit s prostory 1.17
- 1.22 ... 9,76 m2
Prostory ve 2.NP
V roce 2027 - 2028 plánujeme otevření 2. nadzemního podlaží (cca 430 m²), čímž dojde k naplnění vize komplexního zdravotnického centra v klidné a dostupné lokalitě Kolína.
Prostory:
- prostor 2A ... 46,37 m2 lze spojit s prostory 2B + 2C + 2D + 2E
- prostor 2B ... 46,26 m2 lze spojit s prostory 2A + 2C + 2D + 2E
- prostor 2C ... 44,24 m2 lze spojit s prostory 2A + 2B + 2D + 2E
- prostor 2D ... 36,68 m2 lze spojit s prostory 2A + 2B + 2C + 2E
- prostor 2E ... 31,10 m2 lze spojit s prostory 2A + 2B + 2C + 2D
- prostor 2F ... 49,31 m2 lze spojit s prostory 2G + 2H + 2I + 2J
- prostor 2G ... 55,72 m2 lze spojit s prostory 2G + 2H + 2I + 2J
- prostor 2H ... 55,72 m2 lze spojit s prostory 2F + 2G + 2I + 2J
- prostor 2I ... 48,70 m2 lze spojit s prostory 2F + 2G + 2H + 2J
- prostor 2J ... 17,40 m2 lze spojit s prostory 2F + 2G + 2H + 2I
Hlavní přednosti polikliniky Tyršovka

Individuální dispozice:
Možnost vytvoření až 6 samostatných ordinací nebo větších propojených celků. Rozmístění sanity (umyvadla, dřezy) připravíme dle Vašeho požadavku.
Špičkový komfort:
Všechny jednotky jsou vybaveny moderní klimatizací, akustickými podhledy a úspornými okny REHAU pro maximální tepelnou a akustickou pohodu.
Technologie a bezpečí:
Wi-Fi, centrální zabezpečovací systém, kamerový systém ve společných prostorách a inteligentní ovládání topení přes mobilní aplikaci.
Moderní design:
Každá jednotka má samostatný vstup z centrální chodby s designovými hliníkovými dveřmi (matné sklo) a samozavíracím systémem.
Bezbariérovost:
Prostorný výtah zajišťuje komfortní bezbariérový přístup (k využití až po rekonstrukci 2.NP).
Parkování bez stresu:
Pro nájemníky je k dispozici 13 vyhrazených míst na uzavřeném parkovišti se závorou přímo u budovy. Pro pacienty je v těsné blízkosti dostupné veřejné parkoviště.
Dostupná lokalita:
Skvělá dopravní dostupnost MHD, v blízkosti rozlehlé bezplatné parkoviště.
Kontakt
Kontaktujte nás jednoduše prostřednictvím našich webových stránek nebo telefonicky.
Poliklinika Tyršovka
Tyršova 1053, 280 02 Kolín 2




